

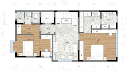
由于房屋空間足夠大,所以設計師將每個臥室都配置了套房設計,有單獨的衛生間,還有各自需求不一樣的衣帽間或者化妝區,滿足業主的不同需求。

客廳以灰色瓷磚做地面設計,雙眼皮吊頂疊加燈帶,讓空間視覺感更加開闊,灰色沙發搭配白色墻面,時尚又美觀,一側大大的落地窗與雙色窗簾既確保了空間的采光又能夠遮擋隱私,很實用。

主臥更加貼切風格設計,以亞麻棕做主要設計,實木地面拼接地面,墻面做墻紙鋪貼,質感十足,雙眼皮吊頂搭配六角燈飾,中式韻味十足,大副的雙拼裝飾畫,床側是雙拼的頂到屋頂的衣柜,另一側是半高的窗臺,采光十足。

次臥棕色實木地面凸顯空間氣質與格調,屋頂雙眼皮設計搭配六角燈飾美觀十足,床頭搭配秀竹圖雅致十足,床體一側是頂到屋頂的衣柜,采用墨色玻璃與木板相拼精致感十足,另一側則是大大的落地窗,采光與視野都不錯。

兒童房選用淡藍色做主要設計,棕色木板腳感更好,床體位于房間中間區域,左側是學習區域,圓形拱門為空間增加了古樸感,但是藍色的主色卻又讓空間滿是浪漫與童趣,讓孩子喜歡自己的臥室。
小區名稱:三湘海尚云邸
面積:460㎡
風格:新中式
